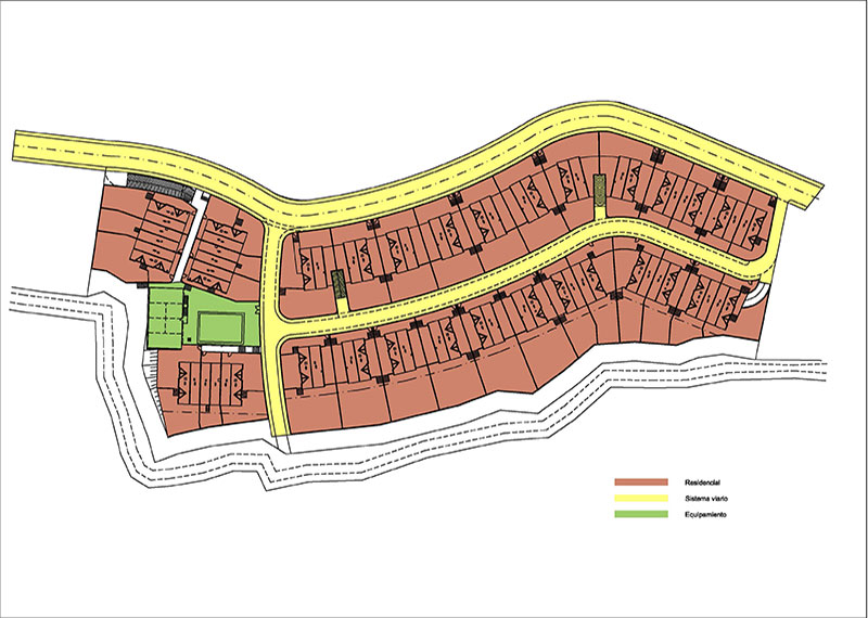
Proyecto Gestión del suelo
Título: Reparcelación y urbanización UER3 La Llosa
Localización: Ortuella
Fecha: 2003
Superficie: 14.400 m²
Urbanización 30 Viviendas
Ortuella
Urbanización 30 Viviendas
Ortuella
Urbanización 30 Viviendas
Ortuella
