Llámanos 946 156 523

  • Home
  • Servicios
    • Proyecto
    • Construcción
    • Informes
    • Licencias
  • Prototipos de vivienda
    • Modernos
    • Rústicos
  • Quiénes somos
  • Contacto

Prototipos Vivienda Rústico

  • GATIKA
  • URDULIZ
  • BILLELA
  • ATXURI
  • ELIZONDO
Tíitulo: Gatika
Plantas: Baja
Superficie útil: 94 m2
Habitaciones: 3 dormitorios y 2 baños
Precio construcción: Desde 111.050 €
gustavogaetano
Zoom
Gatika

Gatika

Zoom
Gatika

Gatika

Zoom
Gatika

Gatika

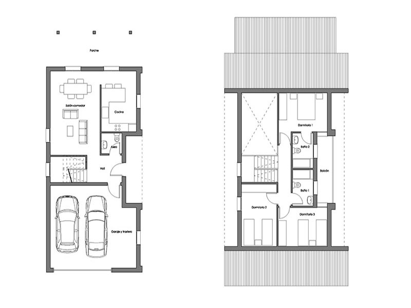
Tíitulo: Billela
Plantas: Baja y primera
Superficie útil: 110 m2
Habitaciones: 3 dormitorios y 2 baños
Precio construcción: Desde 149.907 €
gustavogaetano
Zoom
Billela

Billela

Zoom
Billela

Billela

Zoom
Billela

Billela

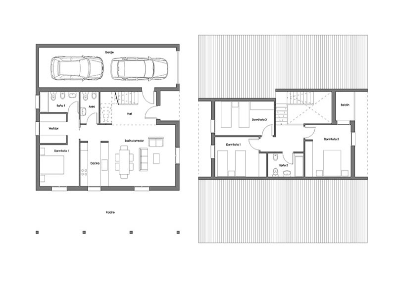
Tíitulo: Urduliz
Plantas: Baja y primera
Superficie útil: 128 m2
Habitaciones: 3 dormitorios y 2 baños
Precio construcción: Desde 124.870 €
gustavogaetano
Zoom
Urduliz

Urduliz

Zoom
Urduliz

Urduliz

Zoom
Urduliz

Urduliz

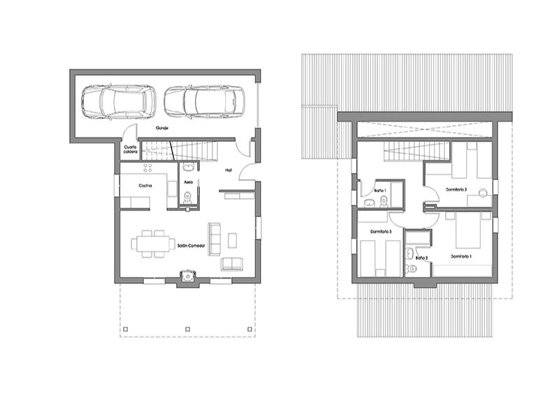
Tíitulo: Elizondo
Plantas: Baja y primera
Superficie útil: 146 m2
Habitaciones: 4 dormitorios, 2 baños y 1 aseo
Precio construcción: Desde 165.700 €
gustavogaetano
Zoom
Elizondo

Elizondo

Zoom
Elizondo

Elizondo

Zoom
Elizondo

Elizondo

Tíitulo: Atxuri
Plantas: Baja y primera
Superficie útil: 133 m2
Habitaciones: 4 dormitorios, 2 baños y 1 aseo
Precio construcción: Desde 145.700 €
gustavogaetano
Zoom
Atxuri

Atxuri

Zoom
Atxuri

Atxuri

Zoom
Atxuri

Atxuri

Servicios
  • Proyecto
  • Construcción
  • Informes
  • Licencias
Información de contacto
  • C/ Elordugoitia nº11, Local 1
    48100 Mungia (Bizkaia)
  • (+34) 94 615 6523
    Fax:(+34) 94 615 1081
  • info@gustavogaetano.com
Quiénes somos

Ofrecemos soluciones de Diseño, Construcción y Ahorro de energía por el camino de la ecología..

Copyright © 2013 Gustavo Gaetano. Todos los derechos reservados.

Términos de Uso | Aviso Legal