Llámanos 946 156 523

  • Home
  • Servicios
    • Proyecto
    • Construcción
    • Informes
    • Licencias
  • Prototipos de vivienda
    • Modernos
    • Rústicos
  • Quiénes somos
  • Contacto

Prototipos Vivienda Moderno

  • NEGUTEGI
  • HIRUNE
  • ARNAGA
  • TORROTZE
  • ARESTI
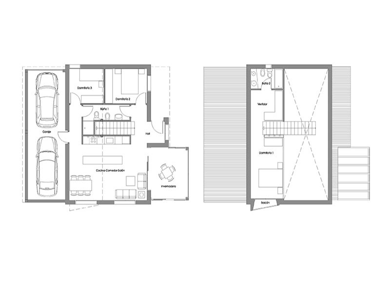
Tíitulo: Arnaga
Plantas: Baja y primera
Superficie útil: 178 m2
Habitaciones: 4 dormitorios y 2 baños
Precio construcción: Desde 184.000 €
gustavogaetano
Zoom
Arnaga

Arnaga

Zoom
Arnaga

Arnaga

Zoom
Arnaga

Arnaga

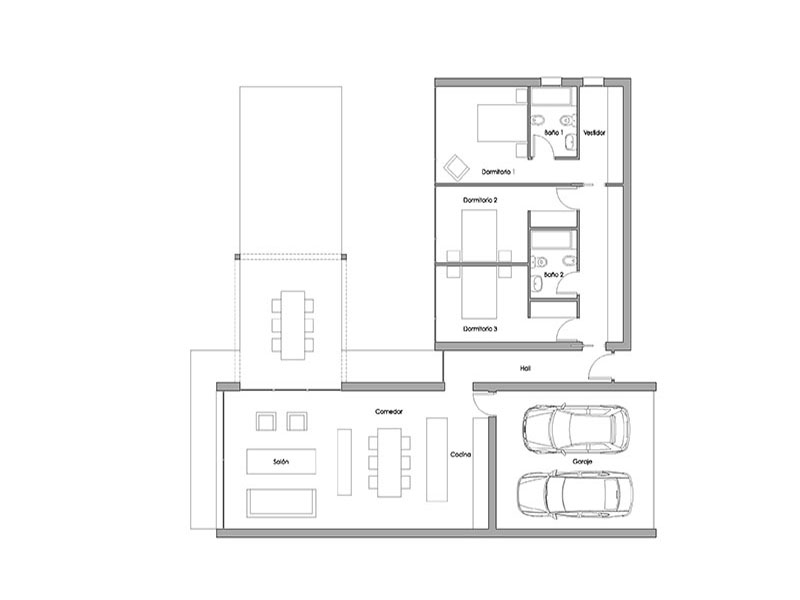
Tíitulo: Aresti
Plantas: Baja y primera
Superficie útil: 205 m2
Habitaciones: 3 dormitorios y 2 baños
Precio construcción: Desde 222.000 €
gustavogaetano
Zoom
Aresti

Aresti

Zoom
Aresti

Aresti

Zoom
Aresti

Aresti

Tíitulo: Negutegi
Plantas: Baja y primera
Superficie útil: 131 m2
Habitaciones: 3 dormitorios y 2 baños
Precio construcción: Desde 122.200 €
gustavogaetano
Zoom
Negutegi

Negutegi

Zoom
Negutegi

Negutegi

Zoom
Negutegi

Negutegi

Tíitulo: Hirune
Plantas: Baja y primera
Superficie útil: 131 m2
Habitaciones: 3 dormitorios y 2 baños
Precio construcción: Desde 126.430 €
gustavogaetano
Zoom
Hirune

Hirune

Zoom
Hirune

Hirune

Zoom
Hirune

Hirune

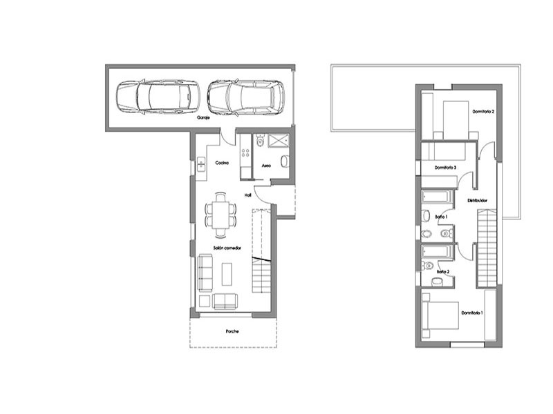
Tíitulo: Torrotze
Plantas: Baja
Superficie útil: 148 m2
Habitaciones: 3 dormitorios y 2 baños
Precio construcción: Desde 161.000 €
gustavogaetano
Zoom
Torrotze

Torrotze

Zoom
Torrotze

Torrotze

Zoom
Torrotze

Torrotze

Servicios
  • Proyecto
  • Construcción
  • Informes
  • Licencias
Información de contacto
  • C/ Elordugoitia nº11, Local 1
    48100 Mungia (Bizkaia)
  • (+34) 94 615 6523
    Fax:(+34) 94 615 1081
  • info@gustavogaetano.com
Quiénes somos

Ofrecemos soluciones de Diseño, Construcción y Ahorro de energía por el camino de la ecología..

Copyright © 2013 Gustavo Gaetano. Todos los derechos reservados.

Términos de Uso | Aviso Legal